Xem nhanh
Cầu lông là gì?
Cầu lông được biết đến là một trong những môn thể thao dễ chơi nhất thế giới, cầu lông phù hợp với tất cả mọi người, tất cả đối tượng từ nam đến nữ, người cao tuổi hay trẻ em. Tùy theo chơi phổ thông, phong trào hay chuyên nghiệp mà người chơi có những mức đầu tư cũng như nhận định khác nhau. Để có thể thưởng thức trọn vẹn môn cầu lông, ngoài việc trang bị cho mình một cây vợt phù hợp, các phụ kiện đi kèm thì người chơi cần phải nắm rõ luật chơi cũng như cách tính điểm.

Chiều cao lưới cầu lông tiêu chuẩn quốc tế
Kích thước chiều cao lưới cầu lông gồm các thông số như sau:
- Chiều cao của lưới ở giữa sân tính từ đỉnh lưới đến mặt sân là 1,524m, và cao 1,55m ở hai đầu lưới tại biên dọc sân.
- Lưới có chiều rộng 760mm và chiều dài ngang sân là 6,7m. Đỉnh lưới được cặp bằng nẹp trắng nằm phủ đôi lên dây lưới hoặc dây cáp chạy xuyên qua nẹp.
Chiều cao cột cầu lông
Chiều cao cột cầu lông là 1m55 tính từ mặt sân. Chúng phải đủ chắc chắn và đứng thẳng khi lưới được căng trên đó. Hai cột lưới và các phụ kiện của chúng không được đặt vào trong sân.

Hai cột lưới được đặt ngay trên đường biên đôi bất kể là trận thi đấu đơn hay đôi
Lưới phải được làm từ những sợi nilon (dây gai) mềm màu đậm và có độ dày đều nhau với mắt lưới không nhỏ hơn 15mm và không lớn hơn 20mm.
Dây lưới hoặc dây cáp được căng chắc chắn và ngang bằng với đỉnh hai cột lớn.
Không có khoảng trống nào giữa lưới và hai cột lưới.
Một số lưu ý về chiều cao lưới cầu lông
Để sử dụng lưới cầu lông đúng cách, chúng ta cần phải chú ý, một số điều như sau:
- Dây lưới hoặc dây cáp được căng chắc chắn và ngang bằng với đỉnh hai cột lớn.
- Không có khoảng trống nào giữa lưới và hai cột lưới.
- Không được để khoảng cách giữa lưới và cột, nếu cần có thể buộc các cạnh bên của lưới vào cột.
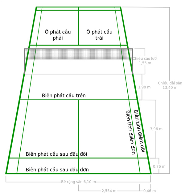
Kích thước tiêu chuẩn của sân cầu lông
Thể thức thi đấu cầu lông bao gồm hai nội dung là thi đấu đánh đơn và đánh đôi. Chính vì vậy, kích thước tiêu chuẩn của sân cầu lông được quy định bởi Liên Đoàn Cầu lông Thế Giới BWF sẽ được chia làm hai kích thước sân sao cho phù hợp với thể thức thi đấu.

Kích thước sân cầu lông đơn
Kích thước sân cầu lông đánh đơn được Liên đoàn Cầu lông Thế giới BWF quy định:
- Chiều dài: 13,4m.
- Chiều rộng: 5,18m.
- Độ dài đường chéo: 14,3m.
Kích thước sân cầu lông đôi
Kích thước sân cầu lông đánh đôi được Liên đoàn Cầu lông Thế giới BWF quy định:
- Chiều dài: 13,4m.
- Chiều rộng: 6,1m.
- Độ dài đường chéo: 14,7m.
Ý nghĩa của đường kẻ trên sân cầu lông

|
Tên đường kẻ |
Ý nghĩa |
|
Baseline |
Đường biên song song với lưới và nằm ở cuối mỗi bên sân. Chiều dài của Baseline bằng chiều rộng của sân cầu lông. |
|
Doubles sideline |
Là đường thẳng cùng với Baseline tạo thành các đường ranh giới bên ngoài cho sân cầu lông. |
|
Center line |
Đường kẻ vuông góc với lưới, giúp chia sân thành 2 phần phải và trái để các tuyển thủ thực hiện giao cầu. |
|
Short service line |
Cách lưới khoảng 2m, còn được gọi là vạch giao cầu ngắn. |
|
Long service line |
Đây là vạch giao cầu dài, khi giao cầu bạn không được để cầu đi quá vạch này nhé. |
Thể thao 365 - Khỏe đẹp hơn mỗi ngày